World leaders in high quality lifting and mooring equipment
All cruciform bollards are designed and manufactured to our customer's precise requirements and supplied with material certification upon request.
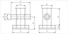
Specifications - Cruciform Bollards |
||||||||||
| Nominal Size of Bollard | S.W.L. Tonnes |
Bitt Diameter D1 | D2 mm |
D3 mm |
D4 mm |
H1 mm |
H2 mm |
H3 mm |
L4 mm |
L5 mm |
| 250 | 25 | 273 | 325 | 140 | 190 | 520 | 385 | 125 | 500 | 580 |
| 315 | 40 | 324 | 400 | 168 | 200 | 660 | 480 | 150 | 630 | 725 |
Cruciform Bollard
All Cruciform Bollards can be made to your exact specifications, please call +44 (0)121 568 3420 for more information.
Created by pmd creative solutions